Atelier Boutique
Paris_XIV
Lieu
Paris_XIV
Date
2018
Surface
90 m²
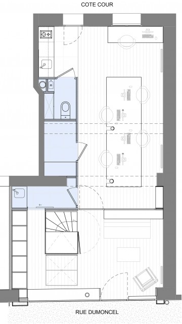
Installé dans le XIV arrondissement de Paris, cet atelier - boutique accueille les Petits Carreaux de Paris - chocolatier. Depuis la rue, entrez et installez vous dans le showroom. A l’arrière, vous apercevrez les bureaux organisés autour de la table principale et la verdure de la cour arrière. Pour continuer votre visite, descendez par l’escalier dérobé, caché sous le présentoir d’accueil et découvrez l’atelier de fabrication des chocolats. Bonne dégustation !
© Photos :
- g.dupuy
Gallerie
© Photo : G.Dupuy
© Photo : G.Dupuy
© Photo : G.Dupuy
© Photo : G.Dupuy
© Photo : G.Dupuy