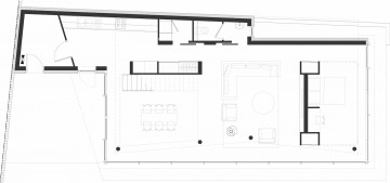
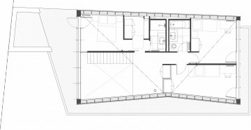
Maison neuve
Herblay
Lieu
Herblay
Date
2014
Surface
160 m²
En association avec Alexis Teissier Architecte
Sélectionné Prix Archinovo 4e édition – prix de la nouvelle maison d’architecte en France

© Photos :
- g.dupuy