Ouvrir le menu
Fermer le menu
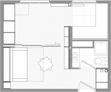
Studio
Paris_Oslo
Lieu
Paris
Date
2017
Surface
20 m²
© Photos :
g.dupuy
Gallerie
1/6
2/6
© Photo : G.Dupuy
3/6
© Photo : G.Dupuy
4/6
© Photo : G.Dupuy
5/6
© Photo : G.Dupuy
6/6
Plan projeté