Santé
Lieusaint
Lieu
Lieusaint
Date
2018
Surface
300 m²
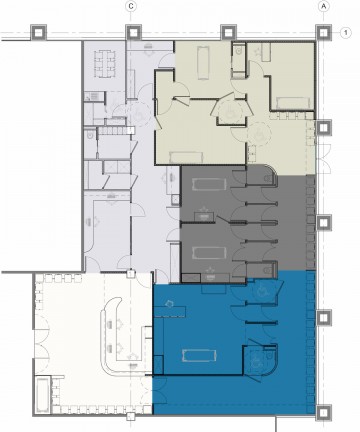
Dans le nouveau quartier de Carré Sénart à Lieusaint, découvrez le nouveau pôle de radiologie. Organisé sur un flux en “escargot”, les patients suivent les façades baignées de lumière et s’orientent grâce au couleurs douces attribuées pour chaque spécialité médicale. En parallèle, le coeur du bâtiment est réservé au personnel dont les trajets se retrouvent optimisés en liaison directe avec secrétariat et public.
© Photos :
- g.dupuy
Gallerie
© Photo : G.Dupuy
© Photo : G.Dupuy
© Photo : G.Dupuy
© Photo : G.Dupuy
© Photo : G.Dupuy
© Photo : G.Dupuy
© Photo : G.Dupuy
© Photo : G.Dupuy